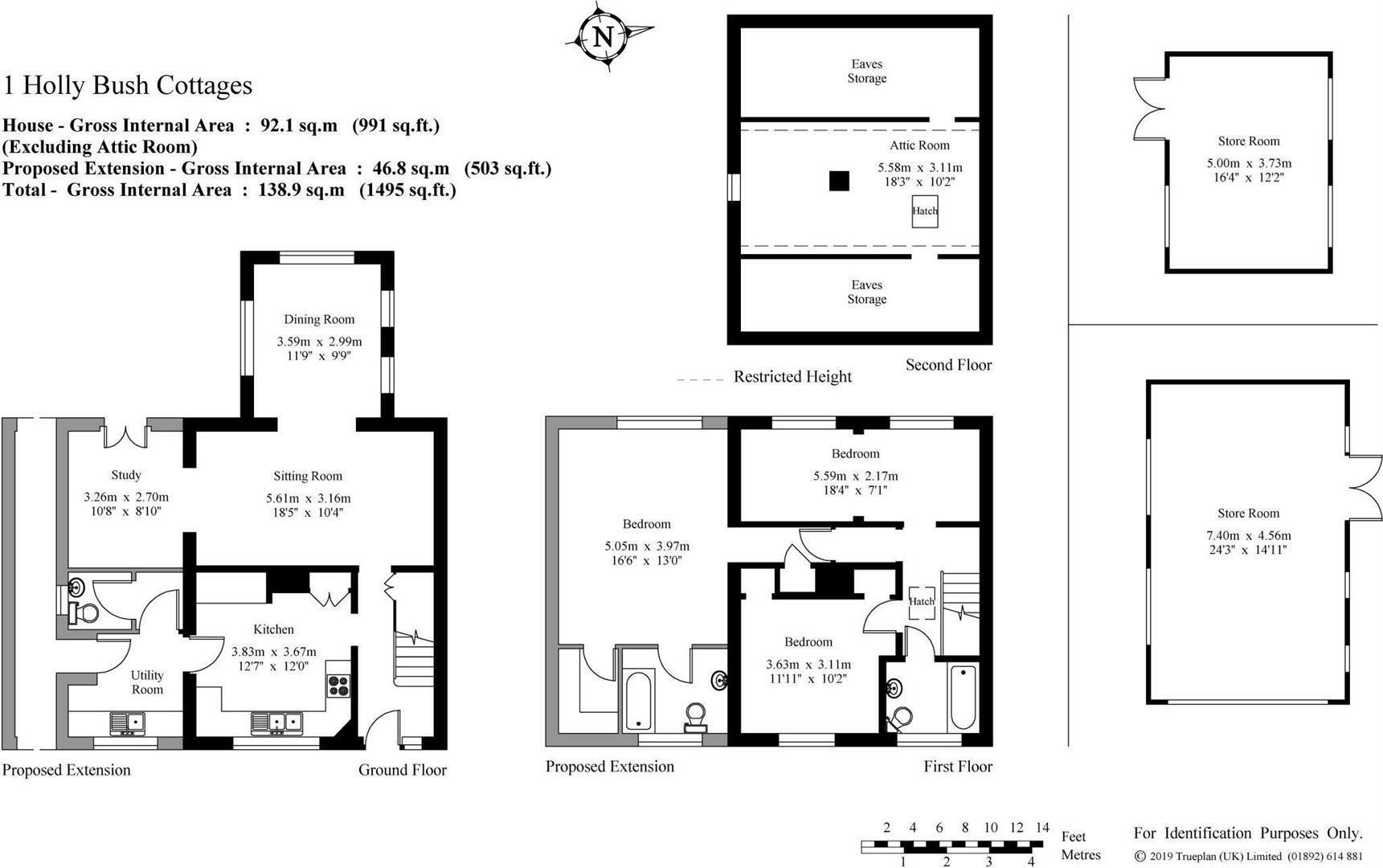
This semi-detached property boasts a great deal of potential, and would make an ideal family home once completed. Currently having two bedrooms, one bathroom, a kitchen, two reception rooms and a renovated attic space, the completion of the current extension would provide an additional main bedroom with an en-suite, study and utility room. The workshops in the rear garden could be utilised as a home office, playroom, gym or studio - the possibilities are endless!
From an elevated position, the front garden is entered through a wooden gate and presents various flowers and shrubs, an area of lawn and a pathway to the front door as well as around the side of the property. This unique and peaceful location provides views out to the recreation ground.
There is an obscure glass double glazed window and glazed panel door to the front. Stripped wooden floor, stripped wooden stairs up, openings to the kitchen and sitting room, radiator. A large understairs cupboard with light houses the switchgear for the workshops, gas and electric meters, as well as providing a useful coat space.
12' 7" x 12' 0" (3.84m x 3.66m)
Cherry wood wall and base units, drawers and cupboards, gas hob, Stoves dual oven, extractor fan, double glazed windows to the front and door to the side where the proposed utility room in the extension would be. There is a cupboard housing Potterton system boiler.
18' 5" x 10' 4" (5.61m x 3.15m)
Carpeted, with two radiators and a double glazed window to the side. Arched open entrance to the dining room.
11' 9" x 9' 9" (3.58m x 2.97m)
Entered from the living room, with four double glazed windows to the rear and both sides, carpeted.
Wood doors to the bedrooms and bathroom, corridor leading to the proposed main bedroom in the extension. Stripped wood floor and a radiator. There is a hatch to the loft space, which has been converted into an attic space, currently accessed via a drop down ladder.
11' 11" x 10' 2" (3.63m x 3.10m)
Carpeted, with a double glazed window to the front, radiator and two separate wardrobe spaces with rails and shelving, one which houses the hot water tank.
18' 4" x 7' 1" (5.59m x 2.16m)
Two radiators, two double glazed windows to the rear looking out over the garden, stripped wooden floorboards.
Obscure double glazed window to the front, bath with overhead shower, low level WC, wall-mounted mirror and pedestal hand wash basin.
18' 3" x 10' 2" (5.56m x 3.10m)
Accessed via a drop down ladder, with power and light. Wood panelling with exposed brick chimney breast, covered cold water storage tank, ample eaves storage and a double glazed window to the side, looking out to the tennis courts.
A delightful rear garden, with a pathway leading through to the outbuildings, brick patio, wooden fencing, flower beds with various shrubs and flowers, trees and bushes. An ideal space for outside dining and relaxing.
16' 4" x 12' 2" (4.98m x 3.71m) and 23' 3" x 14' 11" (7.09m x 4.55m)
There are two outbuildings, both with three phase power, light, shelving and storage. Both are insulated, with 6inch concrete flooring and some double glazed, some single glazed windows. Both provide an ideal, convenient space, as a workshop, home office, studio, home gym, playroom... the possibilities are endless!
Planning permission granted and work started for a double-storey extension providing an additional main bedroom with en-suite and dressing space, utility room and study. The vendor advises us that the drainage has been passed, foundations and the blockworks for the ground floor completed.
Planning permission reference: 03/00940/FUL






















There is not currently an EPC for this property.
List of nearest schools to this property.
* Distances are straight line measurements.
Key Stage 2
St John's Church of England Primary School, Sevenoaks - 0.11 milesKey Stage 4
Walthamstow Hall - 0.1 milesKey Stage 5
Walthamstow Hall - 0.1 milesList of nearest public transport to this property.
* Distances are straight line measurements.
Train Station
Bat & Ball Rail Station - 0.73 milesAirport
Biggin Hill Airport - 8.06 milesCoach Station
Sevenoaks: Bus Station - 0.66 milesFerry Port
Gravesend Pier - 13.56 miles